Country House close to the village
AP 1010
Property ID
113 m2
Size
2
Bedrooms
2
Bathrooms
Description
This stunning country house built to a very high standard in 2010 and clad with natural stones, lies nestling in the picturesque countryside of the Ligurian hinterland. Designed by the current owners as the modern interpretation of a traditional Ligurian country house, it offers 130 m2 (180 m2 commercial area) in overall dimensions. The 5000 m2 grounds benefit from an unusual location only 600 m away and in walking distance to the charming village centre of Apricale. The wide south facing terraces have been lovingly designed by a landscape gardener who managed to create a magically romantic ambience. The entire property enjoys unobstructed views across the Merdanzo Valley and all the way to Perinaldo and the Monte Bignone.
The spacious and well-designed living area is split over two floor levels. The open entrance hall features an elegant marble staircase with open space and leads straight into the light flooded living area. The approx. 50 m2 open space connects a comfortable living room with the dining area and the modern, fully equipped kitchen. The kitchen with a central island and marble work top with integrated gas hob invites to cook whilst enjoying views into the garden.
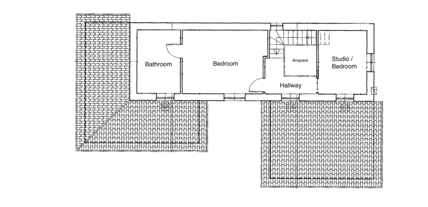
At the rear end of the ground floor a small hall connects with a studio, a shower room and a spacious (17 m2) utility room.
The upper floor accommodates the bedrooms. The master bedroom with floor to ceiling windows offers stunning views over the valley whilst the adjacent bathroom invites for a relaxing soak in its bathtub. On the opposite side of the hall is a small bedroom which is currently used as an office. The oak flooring provides a particularly comfortable atmosphere for the entire floor level.
The house is surrounded by several attractive terraces and charming sitting areas. Several fruit trees are dotted around the grounds as well as 65 cultivated olive trees. A charming greenhouse offers plenty of opportunities for every passionate gardener. The grounds are fully fenced in and there is the possibility to build a swimming pool.
The house was built to withstand earthquakes and was insulated with cork. The wooden windows and doors are fitted with break resistant double glazing. A 1000 l gas tank houses all gas supplies. The temperature on the ground and upper floor level can be regulated individually with thermostats. An air handling system provides air circulation on both floor levels. The grounds are connected to both, fresh water and irrigation water provided by separate tanks.
The picturesque village Apricale surrounded by green rolling hills and olive groves is well known for its authentic medieval centre. Here one can find a selection of good restaurants, cafes and a small shop to cover the daily needs as well as a post office, a tabaco shop and a pharmacy. Apricale benefits from a good infra structure and houses various cultural events throughout the year, culminating in the well-known theatre festival in August. The surroundings invite to be explored on foot or bike and a more glamorous lifestyle awaits on the neighbouring Cote d’Azur. The coastal towns Bordighera and Ventimiglia are only a 25 minute car journey away and Sanremo, Menton, Monte Carlo and the international airport Nice can be reached in less than one hour.
The grounds are connected with the communal road by a 100m quiet, narrow access road, the traditional Ligurian “mulattiera”. This is mostly cement with a level unpaved section. At the entrance gate there is parking, a 7m turning circle, and space to create additional parking. From the entrance gate, a small family car can reach the alternative parking area immediately behind the house via the rose-coloured cement drive.
Distance from:
Nearest town facilities: 1 Km
Nice Airport: 66 Km
Beach: 16 Km
Ski resort: 80 Km (Limone Piemonte)
MORE ABOUT APRICALE AND ITS SURROUNDINGS
Apricale and the Nervia Valley are among the most atmospheric and scenic areas of western Liguria, located just inland from the Italian Riviera. Here, dramatic landscapes, historic villages, and crystal-clear mountain waters come together in an environment defined by tranquility and authenticity.
The medieval village of Apricale is considered one of the region’s best-preserved and most charming hilltop communities. Stone houses cluster along the hillside surrounding the historic Castello della Lucertola, while narrow alleyways — known locally as caruggi — wind through arches, small piazzas, and flower-filled passages. Apricale has long attracted artists and cultural enthusiasts and is well known for its mural paintings, cultural events, and open-air summer theatre performances. The atmosphere is lively yet peaceful, with small restaurants and cafés where local Ligurian cuisine takes center stage.
The village is set within the beautiful Nervia Valley (Val Nervia), a lush green valley stretching from the Ligurian Alps down toward the Mediterranean Sea near Ventimiglia. The landscape is characterized by olive groves, chestnut forests, vineyards, and striking rock formations. In contrast to the more vibrant coastal areas, the Nervia Valley offers an authentic inland lifestyle where nature is always close at hand.
One of the valley’s most popular destinations is the village of Rocchetta Nervina, located just a few kilometers from Apricale. Here, the clear waters of the Nervia River flow through a spectacular gorge, forming natural pools and small waterfalls. The area around the old stone bridge, Ponte Vecchio, is especially famous for its natural swimming spots. During the summer months, both locals and visitors gather to swim in the refreshing turquoise mountain water — a perfect alternative to the nearby beaches on hot days.
The bathing areas around Rocchetta Nervina provide a unique natural setting with smooth rock formations, deep pools, and shaded riverbanks. The water remains clean and fresh throughout the year, and many visitors combine swimming with riverside walks or lunch at one of the village’s traditional trattorias.
The Nervia Valley is also highly appreciated for hiking, cycling, and outdoor activities. Ancient mule tracks connect villages along the hillsides and offer panoramic views across the valley and surrounding mountains. At the same time, the Mediterranean coastline can be reached within approximately 20–30 minutes by car, making the area ideal for those wishing to combine the cool mountain environment with easy access to the sea.
Apricale and the Nervia Valley offer a perfect balance of culture, nature, and quality of life — a part of Liguria where time seems to slow down and local traditions continue to thrive.
Address
- Country: Italy
- Province / State: Imperia
- City / Town: Apricale
- Postal code / ZIP: 18035 Apricale
- Property ID AP 1010
- Price €638000 €615.000
- Property Type Detached villas
- Property status Sale
- Rooms 3
- Bedrooms 2
- Bathrooms 2
- Year Built 2011
- Size 113 m2
- Land area 5.000 m2
- Label Reduced
- Certificato energetico (IPE) Energy Class C; EPi 56,6130



